← BACK

全国“好房子”设计大赛北京赛题

National "Good House" design competition -- Beijing competition

北京市昌平区 2023年9月

国家级竞赛获奖

大规模建设的商品房框定了每个人的界限,界定了大家的心理范围,每个人都只住在自己的小房子里,已经忘了如何享受四季的生活,并完全放弃了与邻居的交互关系。

因此,通过在空间设计中融入无数个能够连接内外环境的空儿,将人与人、人与环境联系起来,在这些空儿里,听虫鸣,感受微风、享受阳光、风和空气。

北京是一座史诗般的城市,它有着源远流长的历史和人文底蕴,是中国古代文化的中心之一,它有着宏大的秩序,有着细微的情感,不仅有着重要的历史价值,还拥有丰富的自然风光和人文景观,在中国占据无可替代的地位。

Core Idea 核心理念

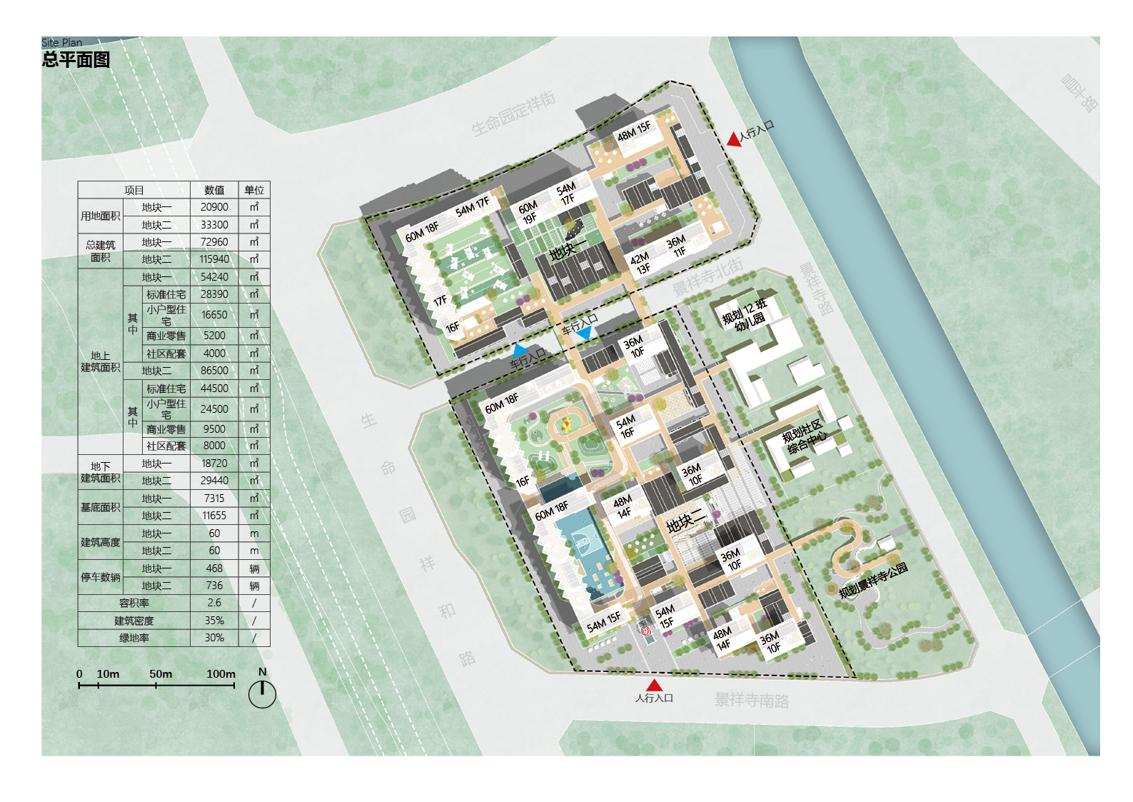
北京生命科学园空间结构:构建“两轴、一心、六区”空间结构“两轴”为创新服务轴、科技拓展轴;“一心”为综合服务核心;“六区”为健康生活区、基础研究区、商业休闲区、创新研发区、绿色智造区、产学研融合区。

北京生命科学园景观格局:构建“一廊穿引、内外双环”景观格局,强化区域识别性和城市魅力。

Site Plan 总平面图

Modular Space 模块化设计

以模块化的设计方式将一个一个的“空儿”植入整体空间,构建院落社区,重塑社区空间的聚落,复兴老北京温情邻里关系。社区的公共空间被划分为三个层次:首层架空、二层连廊和屋顶层。

第1层级:首层是社区与城市共融的界面,向城市敞开,容纳了商业、零售等功能,将外界的自然与城市活力引入社区内。东侧紧邻社区中心,公共开放性与商业属性更为突出,而西侧则更为私密,专为社区内部居民提供亲近生活的场所。

第2层级:二层主要服务社区居民,通过连廊体系将两个地块的功能紧密相连。这一层包括公共服务、运动设施,其中一条400m环形跑道将社区打造成一个健康活力的天地。连廊和建筑体块的围合形成了尺度各异的院落空间,西侧空间尺度更大,适宜年轻人聚集,举办露营、露天电影、球类运动等大型活动;而东侧院落尺度则更为亲切、紧凑,为居民提供了更为私密的生活化、文化性的活动场所。

第3层级:屋顶层则为各自楼栋的居民提供了开放的天空花园,设置健身房、茶室、活动厅等场所,为居民提供日常情感交流和活动的理想场所,增加社区的凝聚力和归属感,让居民在私密花园中享受片刻宁静,感受社区温暖的氛围。

在本次竞赛中,我们的愿景不仅局限于建筑形式的创新,更包含了对城市发展、社区文化、人类生活方式的全面思考。我们希望通过这个社区的设计,唤起人们对传统价值的尊重,同时塑造一个能够成为城市未来发展典范的生活社群。在这样的社区当中,我们憧憬每位居民都可以找到属于自己的“空儿”,尽情享受自然之美,感受邻里之情,为自己创造一个充满活力和温馨的未来。

Rendering 效果图